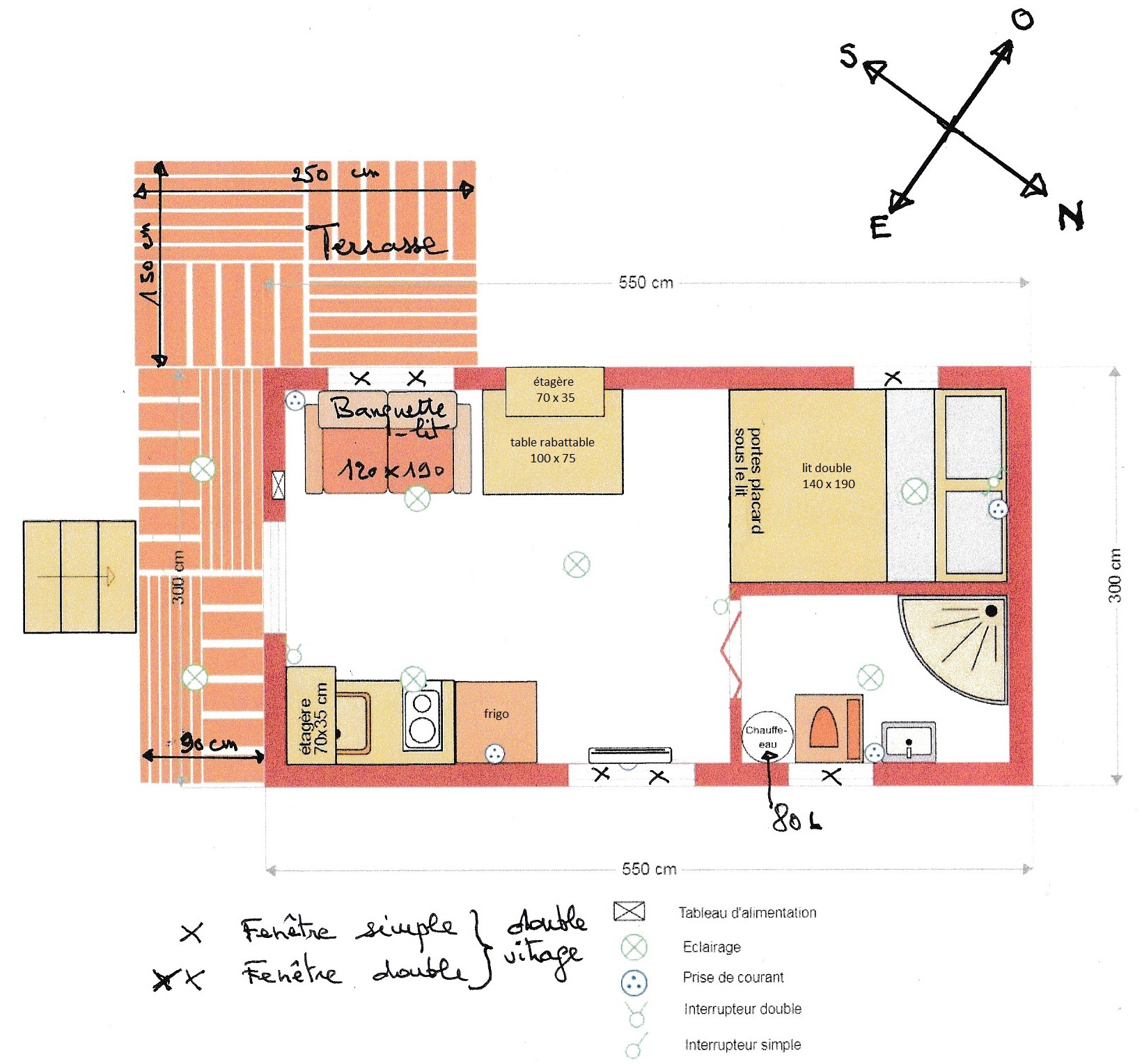
EQUIPEMENTS DE LA ROULOTTE
CHAMBRE ALCOVE
Matelas 140 x 190 en mousse Bultex densité 36 kgCouette et housse de couette
Oreillers et traversin
Etagères
Fenêtre simple ventail
SALLE DE BAINS
Douche d’angle 80 x 80 avec rideauLavabo et miroir
Meubles de rangement
Chauffe-eau électrique 80 L
WC
Porte en accordéon
Fenêtre simple ventail
CUISINE
Evier inox un bacPlacards de rangement
2 plaques de cuisson électrique
Réfrigérateur compact à absorption 40 L
Micro-ondes / Gril 700/1000 W 20 L
Cafetière italienne
Bouilloire
Tout matériel de cuisine, de table et d’entretien
TABLE ABATTANTE REPAS
75 x 1003 ou 4 chaises bois paille
CANAPE CONVERTIBLE
121 x 81 x 75Couchage 121 x 185 x 30
Matelas mousse 30 kg
Sacs de couchage et draps
FENETRES
Deux fenêtres double vantail équipées de moustiquairesDeux fenêtres simple vantail équipées de moustiquaires
CHAUFFAGE
Convecteur électrique 1500 WRégulateur de température
ECLAIRAGE
Spots intégrés au plafondSpots extérieurs
2 mini liseuses de lit
EXTERIEUR
Table de terrasse en bois 70 x 70 et deux chaisesParasol inclinable 300 avec pied
3 fauteuils Transat Lafuma
DIVERS
Extincteur 2 kg poudre ABCRéfrigérateur supplémentaire 130 L dans
local annexe face à la roulotte





